Nous suivre
Se connecter
0
Réf : Provence

Paris 9ᵉ Drouot – 4 pièces de caractère avec parking

Paris (75009)
1 350 000 €

A propos de ce bien

Rue de Provence, à proximité immédiate de la rue Drouot —

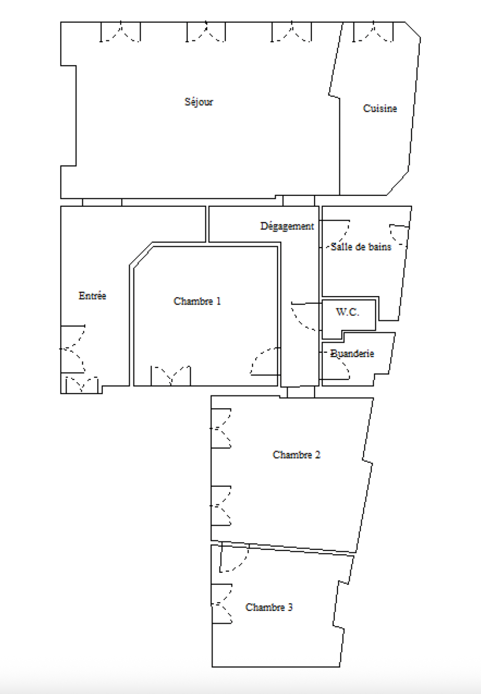
Dans un bel immeuble avec cour pavée, l’agence Quartiers Parisiens vous propose un appartement de 103 m² situé au 3ᵉ étage avec ascenseur.

Il se compose d’une entrée lumineuse, d’un double séjour avec poutres apparentes et cuisine américaine, pour une pièce de vie d’environ 40 m², de trois chambres, d’une salle de bains, de toilettes séparées et d’une buanderie.
Nombreux rangements.

Un grand emplacement de stationnement dans la cour de l’immeuble complète ce bien, un vrai plus dans le quartier.

Emplacement recherché, à proximité immédiate des commerces et des transports.

Chauffage et eau chaude individuels gaz. 

Charges de copropriété 3000€/an; 33 lots. Pas de procédure en cours. Taxe foncière 1700€

Prix de vente: 1.350.000€ HAI dont 2,5% d’honoraires à la charges de l’acquéreur.

Descriptif du bien

TRAD_PAMPERO_Caracteristique Valeurs
Code postal 75009
Surface habitable (m²) 103 m²
Surface loi Carrez (m²) 103 m²
Nombre de chambre(s) 3
Nombre de pièces 4
Etage 3
Ascenseur OUI
TRAD_PAMPERO_Caracteristique Valeurs
Nb de salle de bains 1
Cuisine Américaine
Type de cuisine Equipée
Mode de chauffage Gaz
Type de chauffage Radiateur
Format de chauffage Individuel
Interphone OUI
Visiophone NON
Balcon NON
Terrasse NON
Cave NON
Nombre de parking 1
Exposition Nord-Ouest
Année de construction 1900
TRAD_PAMPERO_Caracteristique Valeurs
Copropriété OUI
Lot n° 17
nombre de lots 33
Quote Part annuelle des charges 3 000 €
plan de sauvegarde NON
statut du syndic pas de procédure en cours
TRAD_PAMPERO_Caracteristique Valeurs
Prix de vente honoraires TTC inclus 1 350 000 €
Prix de vente honoraires TTC exclus 1 317 000 €
Honoraires TTC à la charge acquéreur 2,51 %
Taxe foncière annuelle 1 700 €
DPE GES
Ce bien vous intéresse ?
Fieldset par défaut
Fieldset par défaut
Validation

* Champs obligatoires

Contacter l'agence
Validation
Les informations recueillies sur ce formulaire sont enregistrées dans un fichier informatisé par La Boite Immo agissant comme Sous-traitant du traitement pour la gestion de la clientèle/prospects de l'Agence / du Réseau qui reste Responsable du Traitement de vos Données personnelles. La base légale du traitement repose sur l'intérêt légitime de l'Agence / du Réseau. Elles sont conservées jusqu'à demande de suppression et sont destinées à l'Agence / au Réseau. Conformément à la loi « informatique et libertés », vous disposez des droits d’accès, de rectification, d’effacement, d’opposition, de limitation et de portabilité de vos données. Vous pouvez retirer votre consentement à tout moment en contactant directement l’Agence / Le Réseau. Consultez le site https://cnil.fr/fr pour plus d’informations sur vos droits. Si vous estimez, après avoir contacté l'Agence / le Réseau, que vos droits « Informatique et Libertés » ne sont pas respectés, vous pouvez adresser une réclamation à la CNIL. Nous vous informons de l’existence de la liste d'opposition au démarchage téléphonique « Bloctel », sur laquelle vous pouvez vous inscrire ici : https://www.bloctel.gouv.fr Dans le cadre de la protection des Données personnelles, nous vous invitons à ne pas inscrire de Données sensibles dans le champ de saisie libre.
Ce site est protégé par reCAPTCHA, les Politiques de Confidentialité et les Conditions d'Utilisation de Google s'appliquent.
Ces biens peuvent vous intéresser